Text excerpted in italics and images reproduced below from the Historic American Building Survey (HABS) No. DE-214 (1982), conducted by William J. Cohen, AICP (Project Director and field photographer), Frank R. Selby (historical research and narrative writing), Raymond E. Worrall (delineator of measured drawings and site plan), and Kevin R. Bender (prepared archival 4×5” photos):
Present Occupant: Vacant
Present Use: Abandoned and Unused.
The currently existing Port Mahon Lighthouse is the fourth lighthouse build at this location since 1831. It is listed on the National Register of Historic Places and is considered to be a fine example of turn-of-the century Chesapeake Bay-style lighthouse architecture – the only one of its kind remaining in Delaware. It is also a fine example of screw-pile lighthouse architecture, a unique style of foundation popularized in the nineteenth and early twentieth centuries. […]
The lighthouse was first built at Port Mahon in 1831 due to the heavy use of that part of the Delaware Bay by commercial oyster boats [see this episode by the podcast This Day in Esoteric Political History on the subject of oyster dredging in the region]. The Delaware oyster industry, nationally significant during the nineteenth century, was centered around Port Mahon. The lighthouse is still an object of attention for historians, tourists, and artists and is reported to still be an important landmark to boaters on the Delaware Bay. […]
The present Port Mahon Lighthouse, which is the fourth lighthouse as Port Mahon, was completed in 1903 when, according to Lighthouse Board records, “The new lighthouse was finished, the roof sheathed, the floors laid, the exterior woodwork painted, interior woodwork put in place and finished and the lens was set up in the new lantern.” […]


The original plans for the lighthouse prepared by the United States Lighthouse Board indicate that Lieutenant Colonel W.A. Jones, of the United States Corps of Engineers, Fourth Lighthouse District, was the author of the plans dated 1900. However, it cannot be clearly stated whether he was responsible for all architectural work. […]
The United States Congress appropriated $8,500 for the construction of the new (fourth) lighthouse on June 11, 1896, and the land was acquired from Harriet Atkinson and Harriet Comegys on February 11, 1898 for the sum of $200. The lighthouse was originally under the auspices of the United States Lighthouse Board, which later became part of the United States Coast Guard. The Coast Guard permanently abandoned the lighthouse in 1949. […]

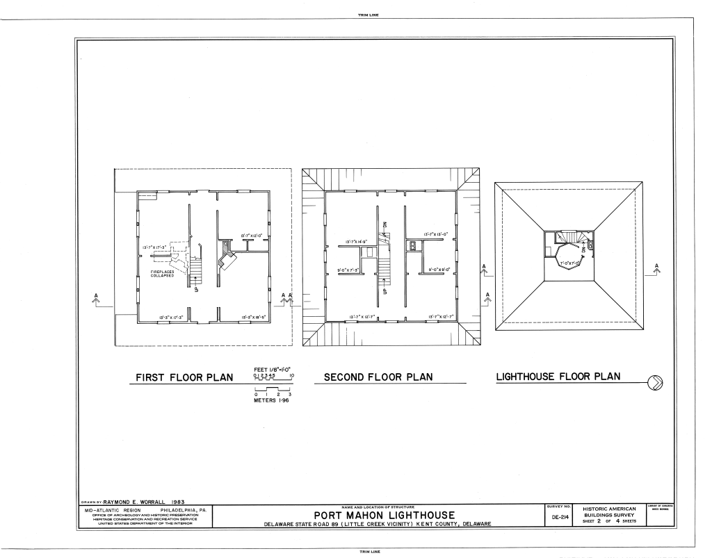
The Lighthouse was planned and constructed as a two-story, square, frame structure having an iron column foundation and pyramidal roofs, on the center of which was the lantern, mounted in a frame and iron cupola […]The first floor was designed to have four rooms: a dining room, a parlor, kitchen, shop and store room. The second floor was designed to have three bedrooms, a bedroom or store room, and two closet-storerooms […] An oil house was constructed approximately 64 feet from the lighthouse.

DE-214-1: West Elevation

DE-214-2: South Elevation
The fourth (current) Port Mahon Lighthouse is considered historically significant because it is one of the few remaining examples of Chesapeake Bay-style lighthouse architecture and of screw-pile architecture. […]

DE-214-3: East Elevation. “The Project Team was granted access to the barge and to the ramp that links the dock to the shoreline. From these vantage points, the east and south sides of the lighthouse were photographed.”

DE-214-4: North and West Elevations
Five lightkeepers manned the Port Mahon Lighthouse between 1903 and 1939. At one time it housed an 11-member family. In 1938, the Mahon Light was electrified and operated automatically. Recollections of descendants of the lightkeepers indicated that operating the light was a family chore. The family was provided with all their household goods and kerosene by the United States Lighthouse Board. During the day, the entire family assisted in cleaning the light and preparing the kerosene to be lit during the night. When fog obscured the light, the keeper’s wife stood in the shallow water banging pots together to warn boaters of the dangerous shoals.

Photo of the Port Mahon Lighthouse (ca1930) with walkways and outbuildings. Photo from the US Coast Guard, reproduced from Lighthouse Friends.

DE-217-7: Southwest Room, Southwest Corner, Kitchen Cupboard

DE-214-5: Iron Screw-Pile Detail. “Once inside, the assignment was fraught with difficulty due to the condition of t the lighthouse. The interior of the structure, having been exposed to the elements for 33 years, was in poor condition. The floor was weak – in fact the stone fireplace had fallen through the floor leaving a huge hole in the floor of one room. Elsewhere, moving about was tenuous since the floor threatened to give way in many areas.“

An accidental fire in 1984 destroyed the lighthouse. Only the iron screw-pile foundations remain. (Photo from Jerrye & Roy Klotz, MD in Wikipedia Commons).
Port Mahon Lighthouse (IV) / Lieutenant Colonel W.A. Jones (architect) and the United States Lighthouse Board / Port Mahon, Delaware, USA / (1900)-1903 / Builder: Benjamin T. Collins
