While perhaps better known as a furniture designer, George Nelson was an architect too. This design for a retail branch of a small regional bank eschews the presentation of neo-classical grandeur in favor of adopting the logic of the strip mall. The curious pyramidal roof was meant to work as an architectural logo for various branch locations around Fort Wayne, Indiana, easily visible from the road. We can wonder if the duck-versus-decorated-shed discourse was deep in Nelson’s head as head had made designs for various gas- and service-stations in the preceding years, all of which depended on the tall logo signage of the station brand. For fun, compare this bank’s space frame of 1971 with that of Nelson’s model self-service station design for BP of 1969-71 (just below). The latter is decidedly the decorated shed, but this bank attempts to invent itself as a duck from scratch, hoping to turn the architectural form into the logo.

Perspective view of an unrealized prototype for a British Petroleum (BP) self-service station (1969-71). The study was produced as part of Nelson’s brand consulting for BP’s arrival in the North American market. Here he is already playing with the space frame, just flat. The grass beds between the road and station pavement are noticeably sloped, prefiguring the berms of the bank branch. And, in the same way that this is a model station design, meant to be reproduced across the continent, so too was the Peoples Trust design meant to be replicated, albeit in the reduced geography of Fort Wayne, Indiana. Image reproduced from the George Nelson Foundation website.
The People’s Trust and Savings Bank appears to still be active, but only with branch locations in the vicinity of Evansville, Indiana, toward the opposite corner of the state from Fort Wayne. It’s not clear if this bank building is still extant, and a satellite imagery survey of retail bank locations around Fort Wayne provides no clues.
Text in italics below excerpted from and images reproduced from Progressive Architecture (November, 1971) with photos by George Nelson and Stedman Studio, unless otherwise noted:

As there was no view in any direction, windows were kept to a minimum and placed at eye level in a 1-ft band between the wall and the space frame structure of the roof. Earth berms are the only landscaping, simplifying the form of the building and uniting it and the ground in a way that makes a unique contribution to the asphalt world of highway architecture […]


Two images immediately above: unknown photographer, reproduced from the catalog of the American Institute of Steel Construction’s (AISC)1972 Architectural Awards of Excellence.

Note the hanging banners with the bank’s dollar-sign-inspired logo, also of Nelson’s design.

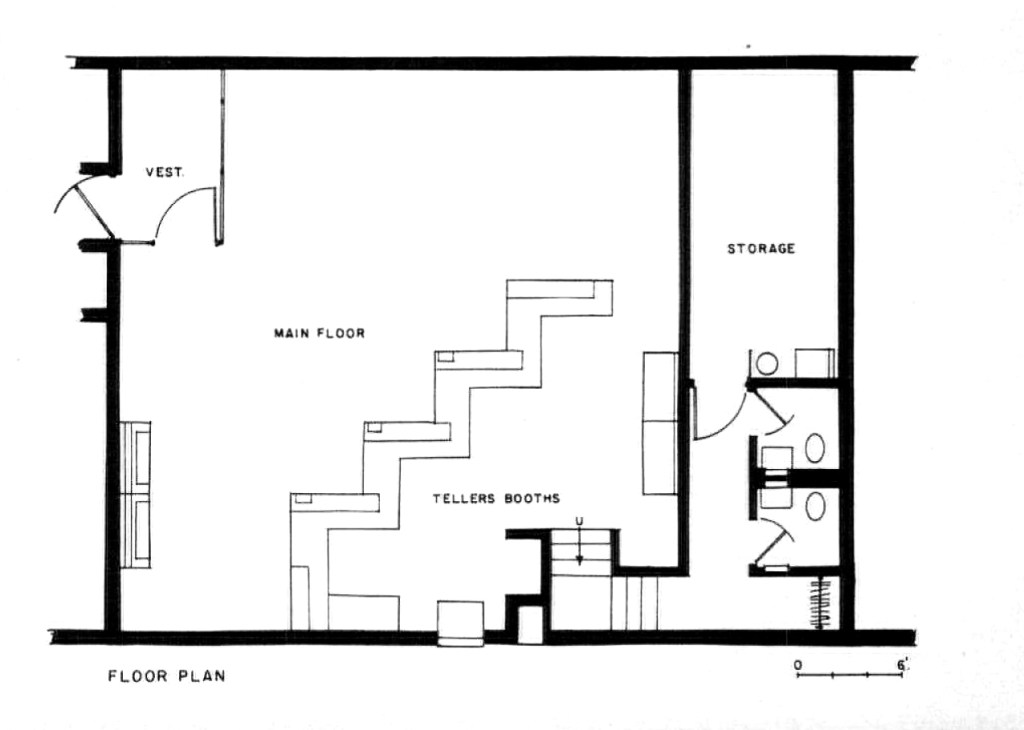
The writing desk (for the obsolete art of endorsing checks and maintaining a checkbook) cantilevers from the wall

The Peoples Trust of Fort Wayne, Ind. is the first of 10 or 12 branch banks that will be located around the perimeter of that city. The banked wanted a series of buildings that could be identified as theirs without extensive signage. George Nelson, in speaking of the client’s desire for image recognition, related it to the successful orange roof of Howard Johnson. He chose what he considered to be a very uncontroversial form – a pyramid – as both roof and building for the new facility […]


One design element common to all the banks in this issue is their placement in a heavily commercialized area, and consequent need to advertise and compete with the visual chaos.

Unknown photographer (ca. 1971), with Nelson’s design for the bank logo. reproduced from George Nelson Foundation website.
Peoples Trust Company Mini-Bank / George Nelson and Company (Project Director: Gerald Jones) with Gordon Chadwick (Supervising Architect: Alan R. Grinsfelder) / Fort Wayne, Indiana, USA / 1971 / Landscape Architect: Peter Rolland / Structural Engineer: D.M. Synder & Associates / General Contractor: Irmscher & Sons, Inc. / Steel Fabricator: Unistrut Corporation of Wayne, Michigan / Cost (including site work): $77,000 = $406,000 in 2024 USD*
*According to the US Bureau of Labor Statistics CPI Calculator
