After a non-exhaustive satelite image search, the editors were unable to acertain the location of the plant or if it remains extant. Text excerpted below in italics and photos reproduced from International Asbestos Cement Review 48 (1967). Photos by Rübartsch, Heidelberg-Leimen:
This refuse reduction plant consists of four hammer mills each of which can deal with 80 tons of domestic refuse per day. As the need for dealing with a greater volume of refuse arises, a fifth hammer mill can be added and structural provisions for this have already been made.
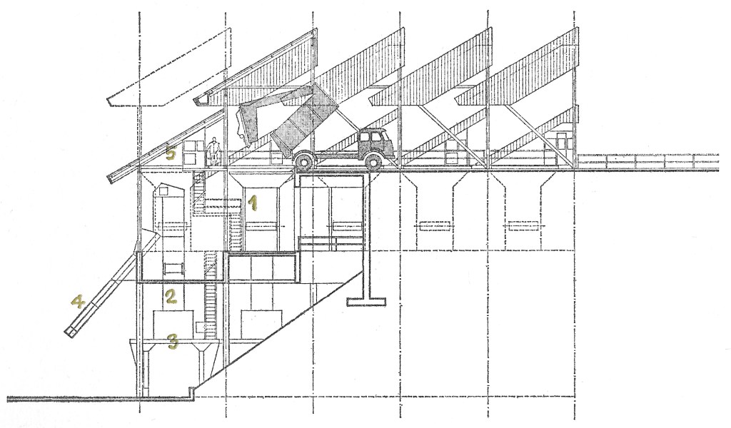
The standard plan of the plant allows three means of access for refuse vehicles to each of the 100-cubic-meter-sized receiving bunkers. The conveyor which forms the bottom of the bunker takes refuse to the actual hammer mill. At 1100 revolutions per minute of the rotor, the refuse is shattered and falls into the transporter vehicles which stand below. The refuse shattered by the hammer shrinks to about 35% of its original volume. A particularly suitable site was found outside Wiesbaden, in the vicinity of a large sandstone quarry. Mixed with waste from the quarry, the shattered refuse can be deposited here for generations to come.
The basic construction on which the machines are mounted was carried out in mass concrete. On this was erected the galvanized steel structure with stairs, gangways, and electrical control cabins. The corrugated asbestos-cement roof serves not only to protect the machines but is also intended to obviate the conspicuous cloud of dust which frequently tends to rise when refuse vehicles deposit their load.

(1) Bunker, (2) Conveyor Belt, (3) Hammer Mill, (4) Ejection of Indestructible Parts, (5) Electrical Control Cabin








Refuse Reduction Plan (Müllzerkleinenrungsanlage) / Wiesbaden Municipal Building Department (Städtisches Hochbauamt Wiesbaden): H. Schmidt, W. Franzen, H. Helling, H. Thornhauer, E. Seifert / Wiesbaden, Germany / ca1967
